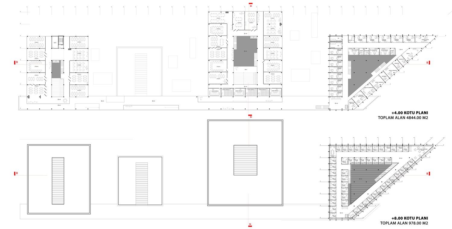
Pamukkale University Faculty of Architecture

NATIONAL ARCHITECTURE COMPETITION

Client: Pamukkale University
Location: Denizli
Date: 2016
Team: Gülnar Ocakdan, Nurgül Assistance, Ali Ibiş, İhsan Metin, Zeynep Akgül, Melda Özlem Dırgın, Meltem Yalçın
Total Construction Area: 17.000 m2